Chalet Maison du Rocher in Val d`Isere
ENQUIRE NOW!Chalet Maison du Rocher in Val d`Isere
Prices from
£560 (€649)
Per Person per week
Catered
- Sleeps 8 – 10
- Traditionally refurbished 1620s farmhouse
- 5 bedrooms all en-suite
- Single room option
- Vast sitting room with log fire
- Satellite TV and WiFi
- DVD player and surround sound
- Separate dining room
- Private sauna and shower
- Boot warmers
- Garden
- 10 mins walk from centre of Funival
- Close to the bus
- Private Land Rover shuttle
- A chef and an assistant
- Fully Catered Chalet
- Secluded
The Maison du Rocher is part of a lovely stone farmhouse in that little enclave of stone chalets on the left as you reach Val d’Isère proper from La Daille.
Perfectly situated in a large garden just above the main road, the chalet is totally insulated from the sound of passing traffic or people, yet close to the bus and just one stop from the funicular or three from the village centre.
A Land Rover shuttle takes them straight to the lifts in the morning, and brings them home in the afternoon. It even makes pre-dinner drinks in town very accessible.
The building dates back to the 1620s, so its walls are deep and solid, its roof of granite slabs and whole trees robust enough to support the weight of Val d’Isère’s heavy snowfall (and a satellite dish).
Fortunately, the five bedrooms and en-suite bathrooms don’t date back to the 1620s. They are all individual, but all warm, welcoming and very comfortable, well fitted-out with lights and cupboards. Two of them (4 and 5) are split-level single rooms, with the bathrooms below and the beds above, under the eaves.
There is a separate dining room, where food is served which we defy any restaurant in Val d’Isère to match (the chef lives in the basement).
The vast sitting room is one of those rooms that feel right, perhaps because of the log fire, the bottomless hand-made British sofas (with duck-down cushions, so guests can spend hours wallowing in them, and chalet staff can spend hours plumping them back up again!) or just the stone walls and wood ceiling. And perhaps in spite of the home cinema system and all-channel satellite…
On the ground floor is a sauna. If you really want to do the thing properly, you can make the short sprint through the front door, roll in the snow in the garden, beat yourself with larch branches (beware – they’re spiky!) and sprint back into the sauna. But most guests seem just to chastise their bodies with a glass or two of bubbly.
The Land Rover is shared with the neighbouring chalets Le Vieux Crêt and La Croix, and is available to ferry you to or from any point in Val d’Isère between 8.30 and 10am, then from 3.30 to 8pm.
Breakfast: Fruit juice, porridge, cereals from Rude Health, bacon, eggs, baguettes straight from the famous local bakery, a croissant or pain au chocolat, yoghurt, Twinings tea and fresh coffee from Nespresso machines.
Afternoon tea: bread and jam, a freshly-baked cake, hot chocolate.
Dinner: no set menus as the chef changes the dishes according to availability of produce.
The evening meal is served with unlimited quantities of a selection of French AOC wine and vin de pays
NB: Special dietary requirements for extra cost per person per wee
Ground Floor
Room 2 – Twin with ensuite Bathroom with wc and wash basin
Sauna with further shower
Staff room
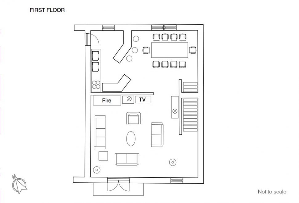
First Floor
Sitting Room with Fireplace, DVD player, WiFi, satellite TV (all major channels), fridge
South-facing balcony
Open-plan kitchen / Dining Room
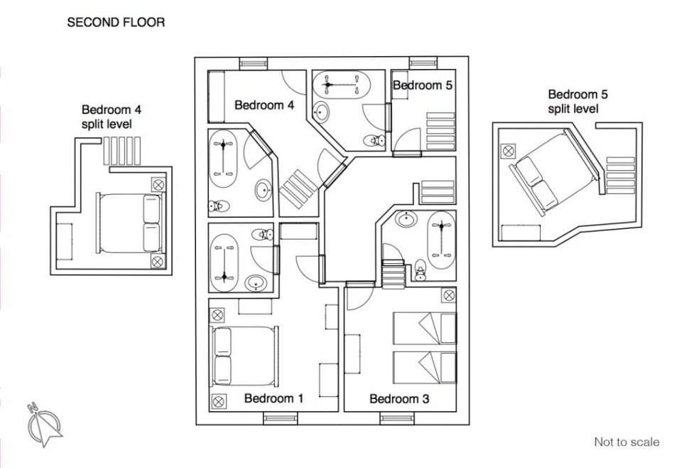
Second Floor
Room 1 – Double with ensuite Bathroom with wc and wash basin
Room 3 – Twin/double with ensuite Bathroom with wc and wash basin
Room 4 – Single split-level with ensuite Bathroom with wc and wash basin; this room contains two beds, the second of which can be used when one party books the whole chalet
Room 5 – Split-level with on the bottom part a single bed and a Bathroom with wc and wash basin and on top part a double bed under eaves; two people can occupy this room when one party books the whole chalet; spectacular views in wall-to-wall mirrors!!
No reviews yet

