Chalet Pic Noir in Val d`Isere
ENQUIRE NOW!Chalet Pic Noir in Val d`Isere
Prices from
£690 (€797)
Per Person per week
Catered
- Sleeps 7 – 8
- New résidence by architect Michel Covarel
- 4 bedrooms all en-suite
- Single room option
- Spacious sitting-dining room with log fire
- Sauna and Boot warmers
- WiFi & TV with Netflix & YouTube access
- Located in the centre of Val d’Isère
- 4 mins walk to the lifts and slopes
Smack in the middle of the main street, a few paces from all of the shops, restaurants, bars, pharmacies, physios and anything else one may want after a day on the world’s best slopes, which are just a four-minute walk away.
There is nowhere better in Val d’Isère for seven or eight people.
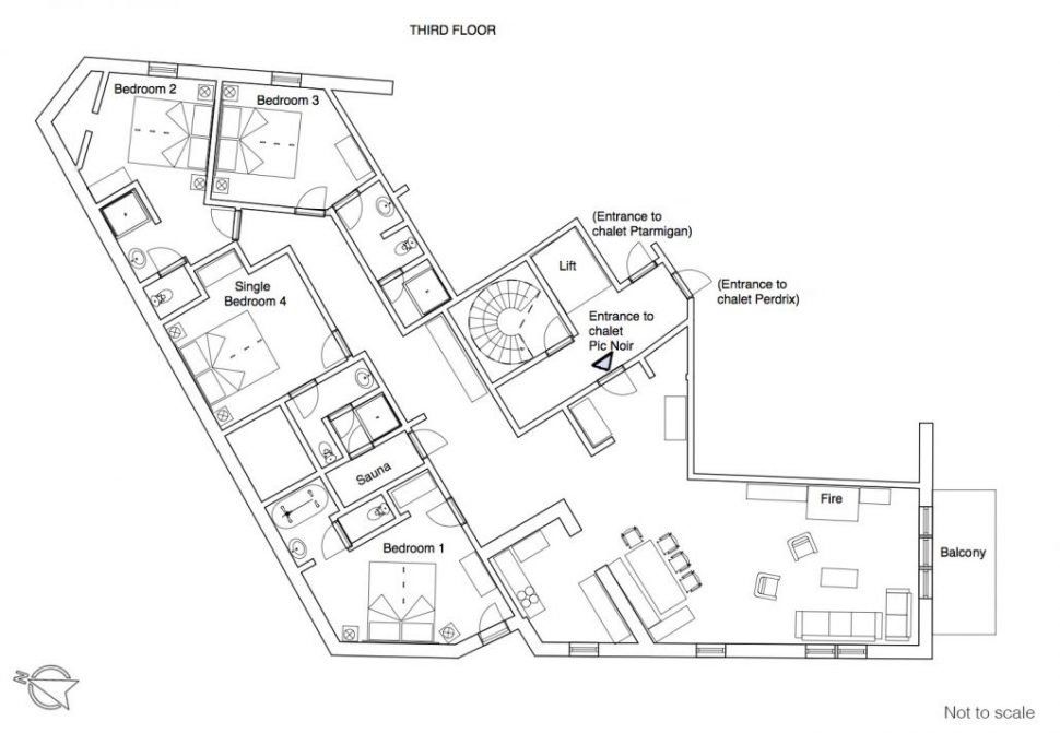
The Chalet Apartments Pic Noir, Perdrix and Ptarmigan are adjacent apartments occupying the whole third floor of the brand-new Résidence du Savoie in the village centre. The architect is Michel Covarel, who has pretty much single-handedly transformed Val d’Isère into the elegant resort it has become.
The sitting-dining room is spectacular. Full of granite and old timber, with good lighting, modern sofas, a roaring log fire and a massive balcony. It offers the most amazing views from La Daille to Solaise, from the main street to the Face de Charvet. The amateur of design will enjoy all the little colour-coordinated touches; all will love the sliding glass around the fireplace, which means one never needs a fireguard, yet it lights like a blast furnace, then glows through the gloaming.
The four bedrooms are beautifully fitted and finished, all with the option of two good-sized single beds or a huge double. Please specify which you would prefer when booking. The bathrooms (one bath, three showers) are sumptuous, with showers you can drown in.
Breakfast: Fruit juice, porridge, cereals from Rude Health, bacon, eggs, baguettes straight from the famous local bakery, a croissant or pain au chocolat if you like, yoghurt, Twinings tea and fresh coffee from Nespresso machines
Afternoon tea: bread and jam, a freshly-baked cake, hot chocolate
Dinner: no set menus as the chef changes the dishes according to availability of produce.
The evening meal is served with unlimited quantities of a selection of French AOC wine and vin de pays
NB: Special dietary requirements for an extra £25 per person per week
Bedroom 1: Twin/double with ensuite bathroom and wc
Bedroom 2: Twin/double with walk-in closet, ensuite shower and wc
Bedroom 3: Twin/double with ensuite shower and wc
Bedroom 4: Single (A good-sized room containing the same twin/double bed arrangement, but without an outside window, hence sold as a single. There is a ventilation system and a window onto the corridor.) with ensuite Shower and wc – the shower is shared with the sauna and can be accessed from both the sauna and the bathroom of bedroom 4.
Open plan kitchen, Sitting-Dining Room, Bright room with south-facing balcony giving a bird’s eye view over the village centre and beyond. Log fire, TV and WiFi
No reviews yet

